Rudsdale Way, , Colchester
£400,000 Guide Price
Property Overview
Summary
A spacious four‑bedroom semi‑detached home in sought‑after Prettygate, featuring three bright reception rooms, a well‑equipped kitchen with utility, and versatile bedrooms with ample storage. The secluded south‑west facing garden, long driveway, and powered detached garage add excellent practicality, alongside strong security features throughout.
Property Features
Full Details
OVERVIEW ***GUIDE PRICE £400,000 TO £435,000***
A spacious four‑bedroom semi‑detached home in sought‑after Prettygate, featuring three bright reception rooms, a well‑equipped kitchen with utility, and versatile bedrooms with ample storage. The secluded south‑west facing garden, long driveway, and powered detached garage add excellent practicality, alongside strong security features throughout.
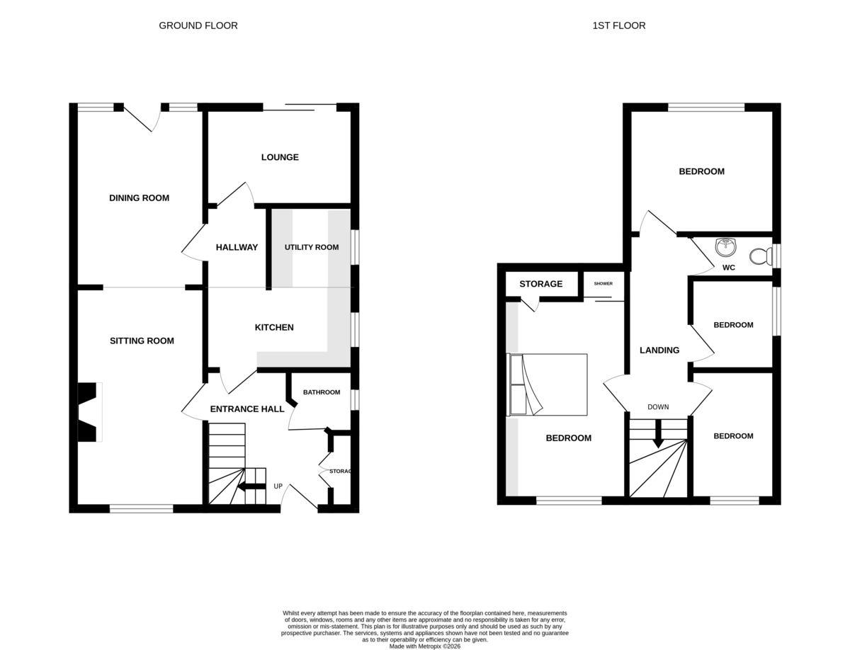
STEP INSIDE A bright entrance hallway with Karndean flooring and useful storage leads into the spacious lounge (5.36m x 3.15m), centred around a charming coal effect gas fire, and through to the dining room (3.67m x 2.30m) with direct access to the garden.
The well equipped kitchen (3.58m x 3.07m) provides plentiful storage along with a built in fridge/freezer, electric hob, double oven, microwave, and under cabinet TV, complemented by a separate utility room with further storage and washing machine plumbing. A sunny snug/summer room (3.64m x 3.05m) opens onto the garden via patio doors, while a convenient downstairs bathroom includes both bath and shower.
Upstairs, the landing offers cupboard space and room for a tumble dryer, with access to a boarded loft with ladder, water tank, and alarm. The master bedroom (4.56m x 3.07m) includes an en suite shower, fitted wardrobes, ceiling fan, and a walk in airing cupboard housing the new 2026 combi boiler.
Bedroom two (3.66m x 3.09m) is a generous double with fitted wardrobes and dressing area, while bedroom three (2.18m x 2.98m) provides a single room with built in storage, and bedroom four (2.27m x 2.17m) serves perfectly as a single or office, complete with phone line, and modem connections. A separate WC with basin and storage completes the first floor, making this a thoughtfully designed and exceptionally practical family home.
STEP OUTSIDE The completely secluded, low maintenance south west facing rear garden offers a peaceful retreat with a lower patio, neat lawn, raised planted borders with garden lighting, water butts, and a powered 8' x 6' shed, while the front garden is well kept with established shrubs, complemented by a long block paved driveway for two cars, a frost free outside tap with hose, and a locked side gate leading to the detached garage. The garage itself is a versatile, well maintained pebble dash prefab structure featuring four windows for natural light, a recently renewed roof with a five year guarantee (two years remaining), internal lighting, power sockets, storage cupboards, a sturdy workbench ideal for DIY or storage, and practical double wooden barn doors.
ADDITIONAL INFORMATION - Yale CCTV system, external alarm, infrared sensors, and multiple security lights
- Smoke and carbon monoxide alarms
- Good internet & DAB coverage
- Council Tax Band D, EPC rating D (2026)
- Gas central heating + coal effect gas fire in lounge
- New electrical board (2025), electric hob & double oven
THE LOCATION Rudsdale Way is located in the popular Prettygate area of Colchester, offering a peaceful residential setting within easy reach of everyday amenities. The property sits just a short distance from Colchester city centre, giving quick access to shops, restaurants, cultural attractions and transport links. Families benefit from several well‑regarded schools nearby, including Home Farm Primary, St Teresa's Catholic Primary, Prettygate Schools and secondary options such as Philip Morant and The Stanway School. With local shops, parks and services close by, it's a well‑connected and desirable location for comfortable suburban living.
Enquire About This Property
If you would like to arrange a viewing of this property or if you have any questions or queries then please contact us using the following information























