Chapel Road, Tiptree, Colchester
£375,000 Guide Price
Property Overview
Summary
This beautifully appointed three-bedroom semi-detached home has been completely renovated to an exceptional standard. Designed for modern living, the property boasts an impressive open-plan layout that seamlessly connects the living, dining, and kitchen areas, creating a bright and welcoming space. With two stylish bathrooms, this home offers both comfort and convenience for families or professionals. Outside, a generous wrap-around garden provides ample space for relaxation and entertaining, making this property a perfect blend of contemporary design and practical functionality in a sought-after location. Offered with no chain!!
Property Features
Full Details
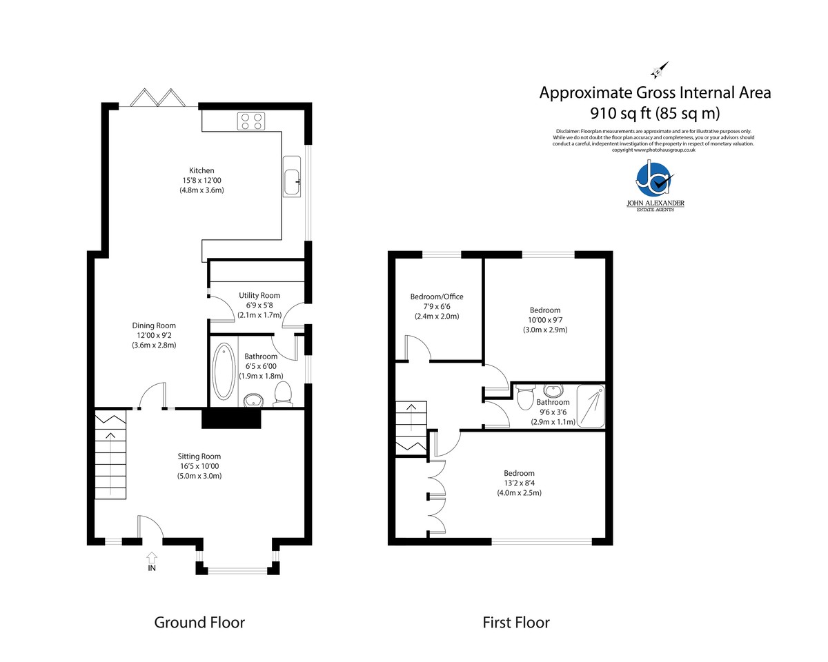
OVERVIEW **GUIDE PRICE £375,000 TO £400,000***
This beautifully appointed three-bedroom semi-detached home has been completely renovated to an exceptional standard. Designed for modern living, the property boasts an impressive open-plan layout that seamlessly connects the living, dining, and kitchen areas, creating a bright and welcoming space. With two stylish bathrooms, this home offers both comfort and convenience for families or professionals. Outside, a generous wrap-around garden provides ample space for relaxation and entertaining, making this property a perfect blend of contemporary design and practical functionality in a sought-after location. Offered with no chain!!
STEP INSIDE Stepping through the front entrance, you are welcomed into the generous Sitting Room (16'5" × 10'0" / 5.0m × 3.0m). This bright and elegant space features wood flooring, which flows seamlessly through to the dining area, enhancing the sense of openness. A flame-effect fireplace creates a warm focal point, perfect for cosy evenings.
Moving through to the Dining Room (12'0" × 9'2" / 3.6m × 2.8m), the continuity of the wood flooring enhances the cohesive feel of the ground floor. This room offers ample space for entertaining and connects beautifully to the stylish kitchen.
At the rear of the home sits the impressive Kitchen (15'8" × 12'0" / 4.8m × 3.6m), designed with sleek white-gloss cabinetry, integrated appliances, and wood counter tops that add natural warmth to the modern aesthetic. Bi-fold doors allow light to flood the space and offer direct access to the garden, making this an ideal hub of the home.
Adjacent to the kitchen is a practical Utility Room (6'9" × 5'8" / 2.1m × 1.7m), providing valuable additional storage and workspace. Beyond this sits a beautifully finished Bathroom (6'5" × 6'0" / 1.9m × 1.8m), fitted with a contemporary suite and designed with the same sophisticated attention to detail found throughout the property.
Ascending the staircase, you arrive at a central landing that leads to three well-proportioned bedrooms and a second bathroom.
To the rear is the Bedroom/Office (7'9" × 6'6" / 2.4m × 2.0m)-a versatile space ideal for home working, a nursery, or a compact guest room.
Next is the comfortable Bedroom (10'0" × 9'7" / 3.0m × 2.9m), offering space for a double bed and storage.
The largest of the bedrooms sits at the front: Bedroom (13'2" × 8'4" / 4.0m × 2.5m), an inviting room with excellent proportions and views over the front aspect.
Completing the first floor is a sleek and sophisticated Shower Room (9'6" × 3'6" / 2.9m × 1.1m). Renovated to a high standard, it features contemporary fixtures, a modern walk-in shower, and elegant tiling.
STEP OUTSIDE Outside, the property benefits from a generous wrap-around garden, offering multiple areas for relaxation and outdoor enjoyment. To the rear, a patio area provides the perfect spot for outdoor dining, leading to a side pathway that connects the different sections of the garden. A garden shed offers useful storage, while the grounds are laid to lawn at both the side and rear, creating a pleasant and versatile outdoor space. To the front of the home, a spacious shingle driveway provides parking for several cars
Enquire About This Property
If you would like to arrange a viewing of this property or if you have any questions or queries then please contact us using the following information
























