Hanover Square, Feering, Colchester
£600,000 Guide Price
Property Overview
Summary
Property Features
Full Details
OVERVIEW *** Guide Price £600,000 - £650,000 ***
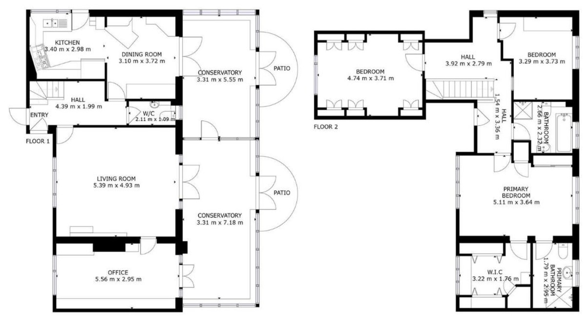
Nestled in the village of Feering, Greenacres offers a truly exceptional opportunity to own a stunning family home in one of Essex's most desirable locations. Located in the charming and peaceful Hanover Square, this property combines elegance, space, and practicality, making it the perfect place for modern family living.
STEP INSIDE Upon entering the home, you are greeted by a wide entrance hall measuring approximately 4.39m x 1.98m. This welcoming space sets the tone for the rest of the property, offering access to the main living areas and a door leading directly into the double garage, which is equipped with power and lighting and features an up-and-over door for convenience.
To the left of the hallway, step into the expansive lounge (5.38m x 4.93m), a bright and airy room ideal for relaxing or entertaining. Its generous proportions allow for flexible furniture arrangements and comfortable family living.
Adjacent to the lounge is a versatile study or fourth bedroom (5m x 2.95m), perfect for those working from home or needing an additional guest room. This room benefits from French doors that open into the first of two conservatories.
Conservatory One (7.19m x 3.3m) is a stunning addition to the home, flooded with natural light and offering French doors leading to the garden. A connecting door leads into Conservatory Two (5.56m x 3.3m), which also features French doors to the rear garden, creating a seamless indoor-outdoor flow and offering multiple access points to the beautifully maintained outdoor space.
Back inside, the dining room (3.73m x 3.1m) provides a formal setting for family meals and entertaining guests. It includes a range of built-in units, adding both style and practicality.
The fitted kitchen (3.4m x 3m) is well-appointed with a range of base and eye-level units, a one-and-a-half bowl sink with mixer tap, and a Range Master cooker. A double-glazed window offers views to the side access, ensuring the space is light and functional.
Completing the ground floor is a downstairs cloakroom, ideal for guests and everyday convenience.
Heading upstairs via the central staircase, the landing provides access to three generously sized bedrooms and the family bathroom.
Bedroom One (5.11m x 3.63m) is a spacious principal suite featuring built-in wardrobes and access to a walk-in dressing room (3.23m x 1.75m), which includes a range of wardrobes and drawers for ample storage. The adjoining en suite shower room (2.95m x 1.8m) has been thoughtfully converted into a wet room, complete with tiled walls, a low-level WC, wash hand basin, and a heated towel rail.
Bedroom Two (4.75m x 3.71m) is another large double room with built-in eaves cupboards, offering character and storage. Bedroom Three (3.73m x 3.3m) also benefits from built-in wardrobes, making it ideal for family or guests.
The family bathroom (2.67m x 2.31m) is fitted with a panel bath, wash hand basin, and low-level WC, providing a clean and comfortable space for daily routines.
STEP OUTSIDE The property includes a double garage with an up-and-over door, also accessible from the hallway, and fitted with power and lighting. The rear garden is fully enclosed and features patio areas, a lawn bordered by mature shrubs, and an outbuilding understood to have power and light. At the front, a block-paved driveway offers additional parking and leads to the garage, complemented by flower beds and a mature tree.
Enquire About This Property
If you would like to arrange a viewing of this property or if you have any questions or queries then please contact us using the following information
























