Bruges Close, Dovercourt, Harwich
£300,000 Guide Price
Property Overview
Summary
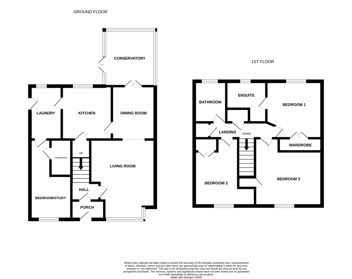
Situated in a highly sought-after location close to the seafront and local schools, this well-presented three-bedroom family home offers generous living space throughout. The property features a bright conservatory, ground floor wet room, ensuite to the master bedroom, family bathroom, and the added convenience of off-road parking.
Property Features
Full Details
THE OVERVIEW ***Asking Price Of £300,000 - £325,000***
Situated in a highly sought-after location close to the seafront and local schools, this well-presented three-bedroom family home offers generous living space throughout. The property features a bright conservatory, ground floor wet room, ensuite to the master bedroom, family bathroom, and the added convenience of off-road parking.
THE HOME On arrival, the property is entered via a porch that opens into a welcoming entrance hallway. The ground floor offers a spacious living room, a separate dining room, a well-appointed kitchen with an adjoining laundry area, a versatile study/bedroom with an accompanying shower room, and a bright conservatory to the rear.
Upstairs, the property boasts three generously sized bedrooms, with the main bedroom benefiting from an ensuite shower room. The two additional bedrooms both feature built-in wardrobes, and completing the first floor is a well-appointed family bathroom.
ROOM DIMENSIONS Lounge - 16' 5" x 10' 7" (5.00m x 3.23m)
Dining Room - 10' 3" x 7' 7" (3.12m x 2.31m)
Conservatory - 11' 9" x 9' 6" (3.58m x 2.90m)
Kitchen 10' 2" x 9'0" (3.10m x 2.74m)
Utility Room - 9' 5" x 5' 2" (2.87m x 1.57m)
Study - 8' x 8' (2.44m x 2.44m)
Bedroom One - 11' 10" x 10' 8" (3.61m x 3.25m)
Ensuite
Bedroom Two - 12' 10" x 9' 2" (3.91m x 2.79m)
Bedroom Three - 10' 9" x 9' 4" (3.28m x 2.84m)
Bathroom
THE OUTSIDE To the front, a block-paved driveway provides convenient off-road parking, while the rear garden offers a pleasant patio area, ideal for outdoor seating and entertaining.
THE LOCATION The property is ideally situated in a quiet and popular residential estate, just a short distance from the seafront. It is also conveniently located near Dovercourt High School, making it an excellent choice for families seeking both coastal living and easy access to local amenities.
Enquire About This Property
If you would like to arrange a viewing of this property or if you have any questions or queries then please contact us using the following information

















