Victoria Street, , Harwich
£130,000 Guide Price
Property Overview
Summary
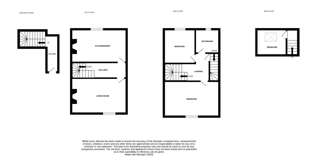
Presenting this three bedroom maisonette, set across four spacious floors. Ideally located within close proximity to the town centre, Dovercourt train station, and the beach, this property combines convenience with coastal living.
Additional benefits include on-road parking, making it a practical choice for commuters or families alike.
Viewings are highly recommended!
Property Features
Full Details
THE OVERVIEW ***Guide Price Of £130,000 - £140,000***
Presenting this three bedroom maisonette, set across four spacious floors. Ideally located within close proximity to the town centre, Dovercourt train station, and the beach, this property combines convenience with coastal living.
Additional benefits include on-road parking, making it a practical choice for commuters or families alike.
Viewings are highly recommended!
THE HOME Upon entering, the home unfolds over four levels, offering three well-proportioned bedrooms. A spacious kitchen and a comfortable living room are conveniently located on the same floor, complemented by a well-appointed family bathroom.
ROOM DIMENSIONS Living Room - 11'2" x 15'2" (3.40m x 4.62m)
Kitchen/Diner - 11'10" x 15'0" (3.61m x 4.57m)
Bedroom One - 11'5" x 15'2" (3.48m x 4.62m)
Bedroom Two - 11'11" x 7'11" (3.65m x 2.43m)
Bathroom
Bedroom Three/ Loft Room - 8'7" x 9'11" (2.62m x 3.02m)
THE LOCATION Ideally situated just moments from Dovercourt Station and the town centre, this property offers easy access to local amenities and transport links. The beautiful beach is also just a short stroll away, making it perfect for those seeking a coastal lifestyle with convenience at their doorstep.
EXTRA ADDED NOTES Please reach out to the agent for lease information.
Enquire About This Property
If you would like to arrange a viewing of this property or if you have any questions or queries then please contact us using the following information










