Langford Road, Maldon, Essex
£4,000 pcm
Property Overview
Summary
This mid-16th-century Grade II listed property has been converted to an exceptional standard, all while preserving the original features to maintain its unique character.
The extraordinary, one-of-a-kind, property includes a stunning vaulted living room, large kitchen/breakfast room and three ensuite bedrooms.
Property Features
Full Details
SELLER'S INSIGHT From the moment we arrived at Mitchells Barn, we knew we'd found something truly special. Set behind private gates, this unique home offers a sense of seclusion and serenity that feels like stepping into your own hidden English country world.
The garden has been our sanctuary, filled with towering oaks, poplars, and open lawns, it's an enchanting space for children to explore and play. Tucked away at the rear is a secret rose garden, a magical setting that's hosted everything from birthday parties to quiet afternoon escapes. The front of the barn also provides its own outside escape. Out of view of the world, you are surround by sculpted conifers and a beautiful pond and fountain that springs multicoloured Water lilies throughout summer.
As custodians of this Grade II listed building, we've taken our role seriously. Over the years, we've made sensitive and thoughtful updates: installing a brand-new kitchen, upgrading the gates and fencing, and enhancing the security and privacy of the property to ensure peace of mind without compromising its historic charm. The thatch has been re-ridged and is in perfect condition and will continue to last decades and is the crowning glory in terms of traditional aesthetic.
Mitchells Barn is more than just a property, it is a home with a soul. It's been the backdrop to our family's most cherished moments and a place where nature, comfort, and design come together in harmony. Now it's time for the next chapter, and we know this home is ready to offer the same warmth, joy, and inspiration to its next owners.
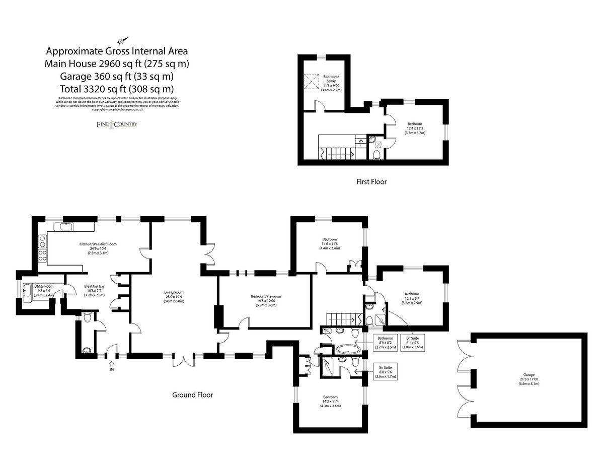
OVERVIEW Welcome to this stunning 5 bedroom barn conversion. With 2,960 sq.ft. and within a 0.49 acre, this property is the ideal contemporary family home which provides the perfect blend of modern living with traditional charm.
This mid-16th-century Grade II listed property has been converted to an exceptional standard, all while preserving the original features to maintain its unique character.
The extraordinary, one-of-a-kind, property includes a stunning vaulted living room, large kitchen/breakfast room and three ensuite bedrooms.
STEP INSIDE Entering the property, you are welcomed into a spacious hallway leading to the heart of the home, a stunning kitchen/breakfast room. This space features bespoke cabinetry, a large central island, and a cooking range. The breakfast area, filled with natural light and boasting exposed beams, offers a cosy spot for casual dining and morning coffee.
A downstairs cloakroom and utility room add convenience and practicality. The utility room provides extra storage and laundry facilities, keeping the main living areas clutter-free.
The living room is a design masterpiece, featuring a brick fireplace, vaulted ceilings with exposed beams, and French doors opening to the gardens.
The property also includes a separate playroom, which could be used as a study, games room, or additional bedroom.
The ground floor hosts three spacious bedrooms, two with en suite bathrooms, and a contemporary family bathroom.
The first floor offers two additional generously sized bedrooms, one with ensuite toilet.
STEP OUTSIDE The property benefits from extensive gardens that encompass the home, providing a picturesque setting for outdoor recreation and entertaining. These lush gardens feature a pond, an arbour, and a large patio, offering a peaceful escape and a connection to the natural beauty of the countryside.
With a gated entrance and large driveway and a detached double garage, there is ample space for parking and additional storage.
LOCATION Mitchell's Barn provides the perfect blend of a semi-rural setting while being just a short distance from the historic town of Maldon, a picturesque town steeped in history, celebrated for its maritime legacy and stunning natural vistas. Situated along the banks of the River Blackwater, Maldon has a reputation for the production of its famous Maldon Sea Salt.
In addition to its rich heritage, Maldon offers a delightful mix of historical and scenic attractions. Promenade Park is a cherished destination among both residents and tourists, providing tranquil riverside walks, beautifully maintained gardens, and vibrant play areas for families. The historic High Street invites exploration with its eclectic selection of shops, cafes, and eateries, all set within charming period buildings.
The town's cultural tapestry is woven with significant historical sites such as the medieval St. Mary's Church and the remnants of a Norman keep, echoing tales from its former castle days. Local traditions are vibrantly celebrated through events like the annual Maldon Mud Race and other festivals that highlight the unique community spirit.
For families considering education options, Maldon is well-equipped with excellent schools. Alongside its reputable public schools, families can choose from quality private institutions such as St. Cedd's School, renowned for its comprehensive curriculum and nurturing environment, and the esteemed Maldon Hall Prep School, known for its emphasis on both academic excellence and personal development.
Enquire About This Property
If you would like to arrange a viewing of this property or if you have any questions or queries then please contact us using the following information















































